Konečně dům, <br> kde budete žít, nejen bydlet

14.850.000 Kč
prodáno

Opravdové rodinné bydlení

Žádná anonymní satelitní výstavba, ale dostatek soukromí, prostoru a dobré sousedské vztahy. To je myšlenka celého projektu. 

Dostupnost i příroda

Můžete bydlet na venkově a zároveň využívat všechny výhody velkoměsta. Do Brna i k nekonečným procházkám po Moravském krasu je to kousek.

Poctivá stavařina

Dům, na který se můžete spolehnout. Prvotřídní materiály a nadstandardní provedení vám zaručí bydlení bez starostí. Výběr interiéru a dispozice je na vás.

V uvedené ceně je hotový dům na klíč v základním standartu. Cena za obklady, dlažby a podlahové krytiny je kalkulována v částce 400 Kč/m2. V uvedené ceně jsou základní terénní úpravy, fasáda, zateplení + příprava na žaluzie, venkovní betonové schody, oplocení, zámková dlažba, základní rozvody elektro, topení podlahové v obývacím pokoji a chodbě, topení  včetně kotle, radiátorů a topných žebříků v koupelnách (bez rekuperace a klimatizace). Detailněji zašleme na vyžádání.

Cena hrubé stavby s pozemkem v aktuálním provedení, jak je vidět ve videu je 11,990 mil Kč.

Cena 14.850.000 Kč

Dům v kostce

Pozemky cca 580 m2

Podlahová plocha 213 m2

Rekuperace pro permanentně čerstvý vzduch

Kvalitní bezúdržbová dřevo-hliníková okna 

Nadstandardní provedení i materiály

Příprava na chytrou domácnost

Soukromá příjezdová cesta, kamerový systém  

Uzavřený  komplex pro 4 domy

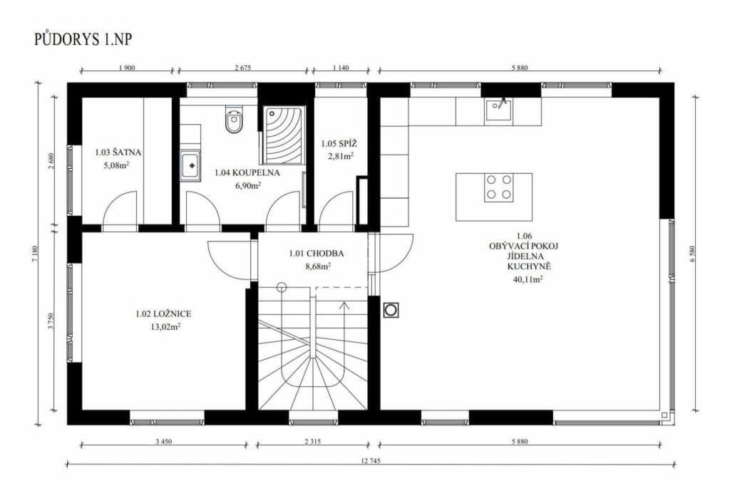
Technická dokumentace

213
m2
prostoru k žití
593
m2
zahrady k radosti
1
min
do lesa za odpočinkem
17
min
do Brna za prací

Lokalita

Místo k životu pro náročné 

Svinošice  jsou malou obcí s 350 obyvateli a najdeme ji v sousedství Moravského krasu, jihozápadním směrem od města Blanska, na jižním úpatí Dubového kopce (523 m. n. m.) v údolí, tvořeném říčkou Kuřimkou. Od severního okraje obce se rozprostírá rozlehlý les, táhnoucí se kolem města Blanska k obci Černá Hora.

K bydlení nabízí všechny výhody. Místní zachovávají tradice jako krojované hody nebo masopustní průvod obcí, do města se autem dostanete za chvíli, ale přírodu a božský klid Moravského krasu máte hned za domem. Zkrátka místo pro ty, kteří od svého domova očekávají víc.

Kontakt