Sklep s ubytováním u Mušovských jezer

Sklep s ubytováním u Mušovských jezer

V životě i v realitách se vyskytují příležitosti, pro které platí ,,teď nebo nikdy’’. Vinný sklípek u Mušovských jezer, ke kterému náleží vlastní ubytování, mezi ně rozhodně patří. Nemovitosti v oblasti Pálavy jsou k mání málokdy, zpravidla se dědí z generace na generaci, rodiny je střeží, opečovávají a nepouští. Pokud vás k Jižní Moravě a dobrému vínu pojí citové vazby, koupí této nemovitosti je můžete jedině prohloubit.

Stavba je po všech stránkách výjimečná. Stávající majitel ji nepronajímali ke komerčním účelům, interiér je tedy v dobrém stavu. Kam oko pohlédne, tam vidí příklady prvotřídní práce. Kovář, kameník i zedník, ti všichni zde nechali kus sebe. Veškeré současné vybavení – sekretář, lavice, stoly, kovové postele i historické komody a skříně – zůstává na místě.

Ke každému z pokojů o šesti postelích patří vlastní sociální zázemí, ubytovací část i sklep mají samostatné vchody. V přízemí je velká místnost s kuchyní (přípravnou), chloubou jídelny jsou velká kachlová kamna.

Konečně se dostáváme do sklepa. Protože to je přece to, na čem to celé stojí. Doslova. Prostoru dominují klasické pálené cihly, stejně jako v obytné části, i zde prostor vkusně podtrhuje umělecká kovářská práce. Před sklepem je velká místnost se čtyřmi stoly a lavicemi, kde pohodlně posedí zhruba pětatřicet lidí. Zde se topí kvalitními kamny s výměníkem, který ohřívá vodu do radiátorů v ubytovací části.

Před sklepem se nachází také venkovní posezení s místem na grilování. Pozemek je pronajatý od obce. Do Brna je to necelých 40 kilometrů, do Mikulova 10.

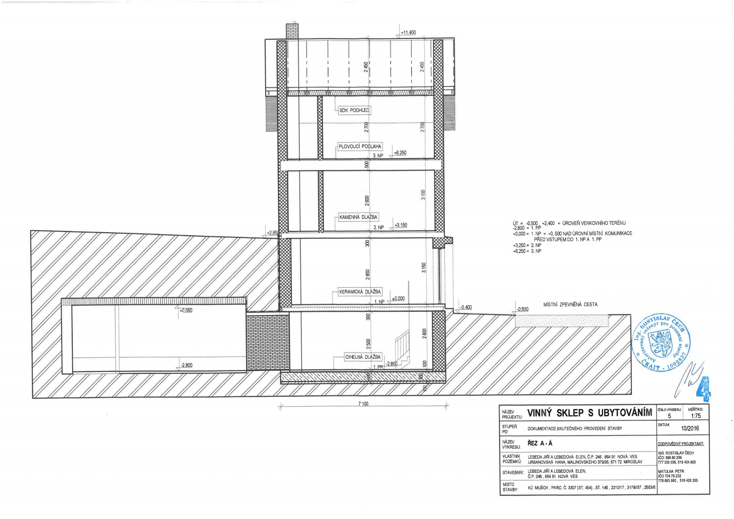
Technické informace: zdivo Porotherm tl. 500 mm, příčky 200 mm, strop ŽB monolitiký 1 PP, trámový s fošnovým záklopem 1 NP a 2 NP, okna a dveře dřevěná, střešní krytina Bramac MT beton, IS elektřina, voda, septik, nově postaveno, sklep prohlouben, kolaudace 2018, ohřev vody zajišťuje bojler, topení kamna JOTUL, kachlová kamna s výměníkem, v nejchladnějších dnech je možné přitápět přímotopem. Elektro 3×25 A. Bezpečnostní mříže na oknech i vstupních dveřích.

Výměry: 1NP – CP 35 m2, 2 x WC, kuchyně s přípravnou 26 m2
1PP – CP 70 m2 posezení u sklepa 35 m2, sklep 30 m2 + archiv 10 m2
2NP – CP 35 m2 – pokoj 27 m2 se soc. zázemím 4 m2
3NP – CP 35 m2 – pokoj 27 m2 se soc. zázemím 4 m2
obestavěný prostor 658 m2

Nemovitost je rozhodně dobrou investicí, dá se využít i na podnikání pro relaxační pobyty nebo menší oslavy.

Zaujala vás nemovitost? Přesvědčte se osobně, že rozhodně je o co stát. Rezervujte si termín teď hned.

pozastaveno
Cena

Klíčové parametry nemovitosti

Vlastní pozemek 53 m2
Nově vybudováno
Kolaudace 2017
Vše poctivá ruční práce a řemesla
Ubytování (2 velké pokoje celkem pro 12 os.)
2x koupelna, 4x wc
Sklep archív
Posezení ve sklepě pro 35 osob
Přípravna s kuchyní + posezení pro 8-10 osob
Parkování pro 4-5 aut
Venkovní posezení před sklepem (pronajatý pozemek)