Rodinný dům s velkým „D“

Rodinný dům s velkým „D“

Máte rodinu, jste městský typ se smyslem pro soukromí a hledáte místo, které vám nabídne prostor pro život, zázemí, pohodu a rychle vám přiroste k srdci? Tohle je horký kandidát.
Rodinný dům 5+1 je dispozičně řešený tak, aby umožnil svým obyvatelům trávit pohodlně čas pohromadě a zároveň poskytl každému dostatek soukromí a osobního prostoru.
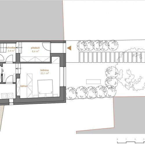
Ložnice v přízemí je volně propojená s šatnou a koupelnou. Z vany je výhled na minizahrádku s růžemi. To posouvá odpočinek v teplé lázni na jinou úroveň. V přízemí je zároveň příprava na kuchyňskou linku, případná budoucí úprava dispozic tak připadá snadno v úvahu.
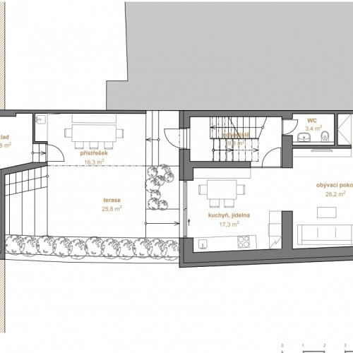
Společenská část zabírá celé prostřední podlaží. Její dominantou je panoramatické okno s velkorysým sedacím parapetem. Tato část má opravdu hodně do sebe, stálí obyvatelé na parapetu často hledají ‚‚útočiště‘‘. Téměř žádná návštěva tomuto pokušení také neodolá a zatouží si to vyzkoušet na vlastní kůži. Výhledy jsou zkrátka k nezaplacení.
Kuchyň je od obývacího pokoje částečně oddělená, s přístupem na venkovní terasu s posezením a minikuchyňkou. Je libo snídani na čerstvém vzduchu? Může být. Dělí vás od ní jen pár kroků.
O patro výše, nad společenskou částí se nachází dětské pokoje s vlastním sociálním zázemím. Stejně jako v ostatních částech domu, i zde je dostatek úložných prostor, které byly vytvořené na míru a s důrazem na praktičnost i vzhled. Tudíž nikde nic ‚‚nezavazí‘‘ a neruší, vše, co obyvatelé potřebují, se dá umístit do skříní a šuplíků. Výsledkem je upravený prostor, který působí vzdušně a útulně zároveň, kde je radost pobývat, pracovat, studovat, odpočívat i tvořit. Jak jen kdo potřebuje.
A ještě něco – nad dětskými pokoji je malá místnost pro příležitostné přespání s hezkým výhledem na hvězdy. A také na železnici. Díky kvalitním oknům a rekuperaci není projíždějící vlak téměř slyšet.
Ve svahu za domem se rozprostírá kaskádovitě řešená zahrada, kde najdete ohniště, sluneční terasu, trampolínu, nejrůznější stromy, plody, bylinky a jedlé květy. Úplně nahoře pak čeká na zbudování dřevěná skrýš, rozhledna nebo posed.
Zaujal vás tento dům? Neváhejte a dorazte na prohlídku.

Koncepci architekt pojal jako bílou abstraktní plastiku s výstupky, zářezy  a nepravidelnými otvory,  položenou do členité  zahrady.

Technické informace: dům je cihlový, okna 3 skla plastová lakovaná, nové příčky SDK, schodiště beton, podlaha dřevěná plovoucí + keramika v koupelnách, střecha plech Lindab + foukaná izolace, zateplení domu polystyren 200 mm, topení podlahové elektrické + vytápění rekuperací (dvoutarif). Rekuperace i rozvody od firmy Evora, s. r. o., kombinovaná jednotka PKOM4 s tepelným čerpadlem pro vytápění i chlazení, ohřev vody.

Výměry:
přízemí 60 m2 – předsíň 7,5 m2, sklad 4,3 m2, technická místnost 7,7 m2, ložnice se šatnou 23 m2, chodba 4,2 m2, koupelna 5,2 m2
1. patro – 55 m2 (obývací pokoj s pracovnou 25 m2, kuchyně s jídelnou 18 m2, chodba 4 m2, WC 3,2 m2, schodiště 5 m2,) + venkovní terasa 27 m2, venkovní sklad/sklep 19 m2
2. patro – 46 m2 – pokoj se šatnou 19 m2 + pokoj 18 m2, koupelna 4 m2, chodba 5 m2,
půda – pokoj pro hosty 15 m2

Orientace domu východ/západ.

pozastaveno
Cena

Klíčové parametry nemovitosti

RD 5+1 s garáží
Rekuperace s tep. čerpadlem (chlazení, topení, ohřev vody)
Nízké náklady na provoz 5 tis Kč/měs.
Obytná plocha 175 m2
Zahrada 300 m2
2x zelená střecha
CP pozemek 587 m2
Zahradní sklad
Letní kuchyň s pergolou a terasou
Garáž 35 m2 + parkování pro 2 auta
Kompletní rekonstrukce r. 2019
PENB "B"