Klíčové parametry nemovitosti
stavitelé bratři Alois a Vilém Kubů z meziválečného období s prvky funkcionalismu ZP 202 m2 za domem zahrada cca 100 m2 2 parkovací místa + garáž k rekonstrukci na dobré adrese různé možnosti využití veškeré jednotky IS
Všichni víme, že ideální je, když si můžete postavit dům od základů. Na zelené louce, jak se říká. Všechno je podle vašich představ, v ničem se nemusíte přizpůsobovat… A všichni také víme, že postavit zcela nový dům v Brně dá fakt zabrat. Najít v Brně pozemek, vyřídit veškerá povolení, odsouhlasit projekt se sousedy, celý dům dokončit, to je úkol na několik let. Chce se to obrnit velkou trpělivostí.
Rekonstrukce samosebou také vyžaduje trpělivost, finance a odhodlání. Ale nesrovnatelně menší úsilí, co se týká jednání s úřady a vyčkávání na razítka a souhlasy.
Právě teď je jeden takový dům k rekonstrukci k mání. Nachází se v Králově Poli, oblíbené lokalitě. Všechny výhody velkoměsta budete mít po ruce, ale zároveň zde najdete klid a dokonce i vlastní zeleň cca 100 m2.
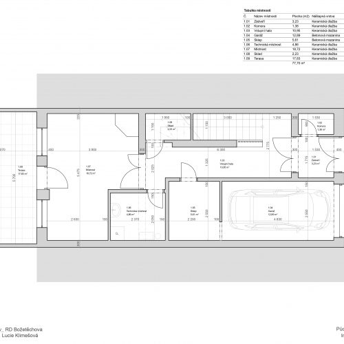
Dům je v původním stavu, udržovaný, vše plně funkční, doposud obývaný.
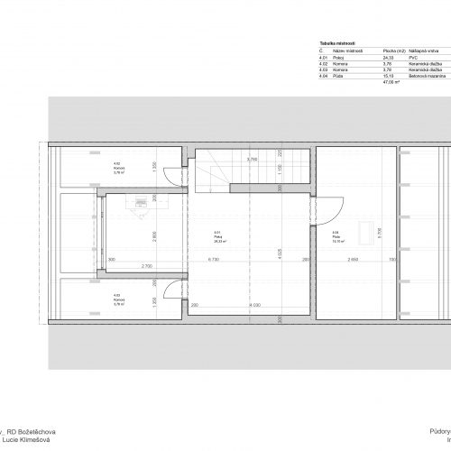
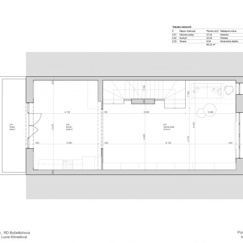
V přízemí je teoreticky možné vybudovat samostatnou garsonku se vstupem na terasu a zahrádku. Další tři patra lze pojmout různě. Prostory lze přizpůsobit výhradně k bydlení nebo věnovat některou jejich část komerčním účelům. Rozhodně se vyplatí obrátit se na odborníka, který se na dům podívá ze své perspektivy.
Výše byla řeč o vlastní zeleni. Ve vnitrobloku se nachází zahrada se vzrostlými stromy a jezírkem. Potřebuje obnovit, prořezat a zkultivovat, ale vlastníma rukama nebo s pomocí zahradního architekta se z ní stane velmi příjemné místo k odpočinku.
Odvěký problém s parkováním v Brně vás zde taky nečeká. V garáži se najde místo pro jedno auto, v předzahrádce dokonce hned pro dvě a další na ulici před domem.
Umíte si sami sebe ve vilce představit? Přihlaste se o termín přehlídky teď hned.
Technické informace:
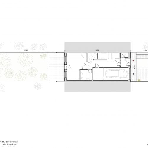
pozemek je široký 6 m, délka 13,25 m, stropy 2,9 m
veškeré IS, nepodsklepeno, cihlové zdivo, střecha sedlová, dřevěný krov s pálenou taškou, stropy betonové, podlahy beton a dřevěné parkety, okna plast, topení plynový kotel, v přízemí krb, terasa navazující na zahradu
stavitelé bratři Alois a Vilém Kubů z meziválečného období s prvky funkcionalismu ZP 202 m2 za domem zahrada cca 100 m2 2 parkovací místa + garáž k rekonstrukci na dobré adrese různé možnosti využití veškeré jednotky IS